Açıklama
Malzeme:
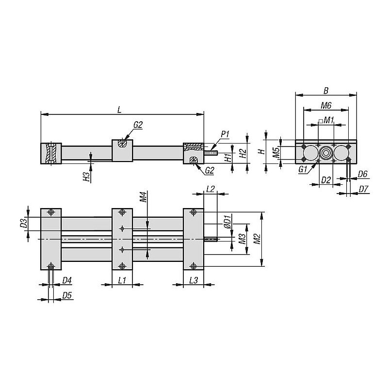
Alüminyum gövde.
Paslanmaz çelik hassas boru.
Trapez dişli mil, çelik.
Çift boru doğrusal üniteler manuel veya elektrikli tahrik edilebilir. Üniteler kısa açma süresi nedeniyle, günlük olarak birkaç kez düşük hızla ve yüksek stabiliteyle ayarlanabilir. Genişlik, uzunluk ve yükseklik ayarı mümkün.
Çift tüplü lineer ünitelerin trapez dişli mili ya bilyalı yataklara ya da kaymalı yataklara monte edilir. Çift tüplü lineer ünitelerin taşıyıcısı bir kayar kılavuz ile donatılmıştır.
Devrede kalma süresi: S3, %30 (60 dakikada)
Sıcaklık aralığı 0° C ile +60° C arası
Diğer uzunluklar.
Entegre iş mili kelepçesi.
Burada bilgiler toplu halde PDF olarak sunulur:
CAD verileri mi arıyorsunuz? Bunları doğrudan ürün tablosunda bulabilirsiniz.




Değerlendirmeler
Henüz değerlendirme yapılmadı.